Cross Road Deal

Consultancy advice for Gladman Developments

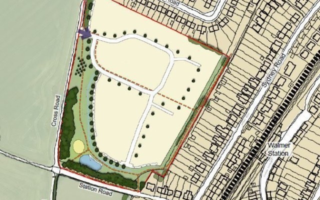
Project

Dover Borough Council refused Gladman Developments' proposal to develop a site for approximately 100 residential units.

Approach

We advised Gladman Developments to appeal against Dover Borough Council's refusal, amid active objections from local lobbyists, as well as managing a number of constraints on and around the local road network.

Results

The appeal was successful and the development went ahead as initially planned.

Get in touch with the BTG Eddisons team

Please contact us for more details and information.

Related reading

View All
Achieving planning approval for Gladman Developments’ Bocking scheme
Untitled design 61

Transport planning and design

Development

Achieving planning approval for Gladman Developments’ Bocking scheme

Consultancy advice for The Co-operative Group Ltd
Co op Whitley Bay

Transport planning and design

Retail

Consultancy advice for The Co-operative Group Ltd

Consultancy for student residential accommodation scheme
Fox Street

Transport planning and design

Consultancy for student residential accommodation scheme

Planning application for KFC
Prestwich

Transport planning and design

Retail

Planning application for KFC

Meet the team
CTA grid   Our Team

Our team

We are proud to employ more than 550 talented individuals working across a multitude of disciplines.

Find your nearest office
uk map dotted orange

Office finder

BTG Eddisons is rapidly growing; emphasised by our nationwide network of 35 offices across the UK.

Get in touch with us
CTA grid   Contact Us

Contact us

We are ready to take your call and can quickly pass you through to the right department.

Sign up to our newsletter
CTA grid   Newsletter

Newsletter

Join thousands of property managers, occupiers, landlords and investors receiving the latest insights.

This site uses cookies to monitor site performance and provide a more responsive and personalised experience. You must agree to our use of certain cookies. For more information on how we use and manage cookies, please read our Privacy Policy.