Under Offer

Wilson Road, Wyke, Bradford, BD12 9HN
On Application

ID:

3014335

17 Acres
Freehold
Land & Development

Details

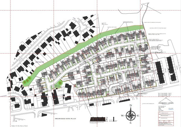
The land comprises a site of approximately 17 acres (6.88 hectares) being predominately flat. The land is accessed via Wilson Road with the surrounding area being a mix of residential and commercial occupiers.

Location

Enquire about this Property

Please contact us for more details and information about this property

Your Agency Specialist

Similar to this property

4 & 4a St Johns Place, Cleckheaton, West Yorkshire, BD19 3RR
60c70f35 b2e4 4d74 bec6 20596437b86b
Industrial

Under Offer

4 & 4a St Johns Place, Cleckheaton, West Yorkshire, BD19 3RR
7,050 Sq Ft
On Application
View Listing
Oasby Croft, Off Tong Street, Bradford, West Yorkshire, BD4 9LU
d1969513 3f20 4976 ad69 a42224516dfc
Hotel & Leisure

Under Offer

Oasby Croft, Off Tong Street, Bradford, West Yorkshire, BD4 9LU
13,976 Sq Ft
On Application
View Listing
Units 5/7, Pitcliffe Way Industrial Estate, Off Upper Castle Street, Bradford, West Yorkshire, BD5 7SG
80206d25 1b0f 4ab7 a912 0eaca393c4ee_web
Industrial

Under Offer

Units 5/7, Pitcliffe Way Industrial Estate, Off Upper Castle Street, Bradford, West Yorkshire, BD5 7SG
4,000 Sq Ft
On Application
View Listing

This site uses cookies to monitor site performance and provide a more responsive and personalised experience. You must agree to our use of certain cookies. For more information on how we use and manage cookies, please read our Privacy Policy.