Available

Meridian Court, Compass Point, St Ives, Cambridgeshire, PE27 5FH
£399,500

ID:

3014811

2,412 - 11,936 Sq Ft
For Sale
Industrial

Details

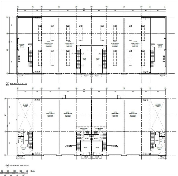
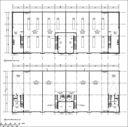
The development of Meridian Court comprises of two blocks of brand-new business units to be constructed in two phases. The first phase is complete and all sold and occupied. Construction of the second phase is now nearing completion with anticipated completion in the coming weeks. Each unit has its own entrance lobby with access to the warehouse, WC, and stairs to first floor offices installed as standard. There is also a kitchenette fitted upstairs. The end of terrace units benefit from dual aspect glazing to the lobby and office accommodation providing good natural light. Construction is of steel portal frame with clad external elevations incorporating a roller shutter door to access the warehouse. Each unit benefits from a number of allocated parking bays as shown on the attached plan.

Location

Enquire about this Property

Please contact us for more details and information about this property

Your Agency Specialist

Similar to this property

Phase 2, Meridian Court, Compass Point, St Ives, Cambridgeshire, PE27 5FH 5bdeb185 ea4c 4814 9c24 2e62e49e065f

Industrial

Phase 2, Meridian Court, Compass Point, St Ives, Cambridgeshire, PE27 5FH
2,412 - 11,936 Sq Ft
£28,950.00 per annum
View Listing
First Floor , The Pavement, St. Ives, Cambridgeshire, PE27 5AD b51298bd 07d3 4d26 b0fd 3cbfa5b169fc_web

Office

First Floor , The Pavement, St. Ives, Cambridgeshire, PE27 5AD
1,573 Sq Ft
£19,500.00 per annum
View Listing
First And Second Floor Offices , Town Hall , Market Hill, St. Ives, Cambridgeshire, PE27 5AL db3194b4 b5d3 4045 b517 ace4a8fba6b7

Office

First And Second Floor Offices , Town Hall , Market Hill, St. Ives, Cambridgeshire, PE27 5AL
240 Sq Ft
£3,600.00 per annum
View Listing

This site uses cookies to monitor site performance and provide a more responsive and personalised experience. You must agree to our use of certain cookies. For more information on how we use and manage cookies, please read our Privacy Policy.