Available

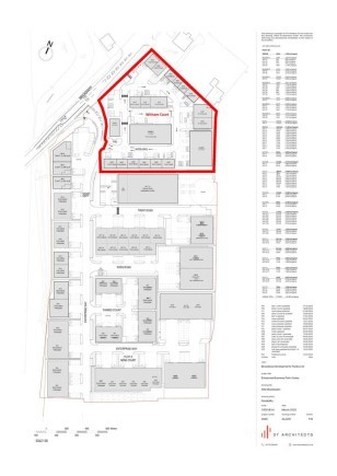
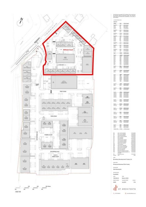
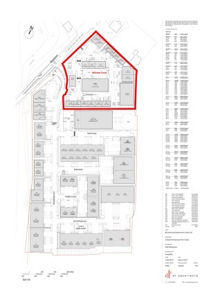
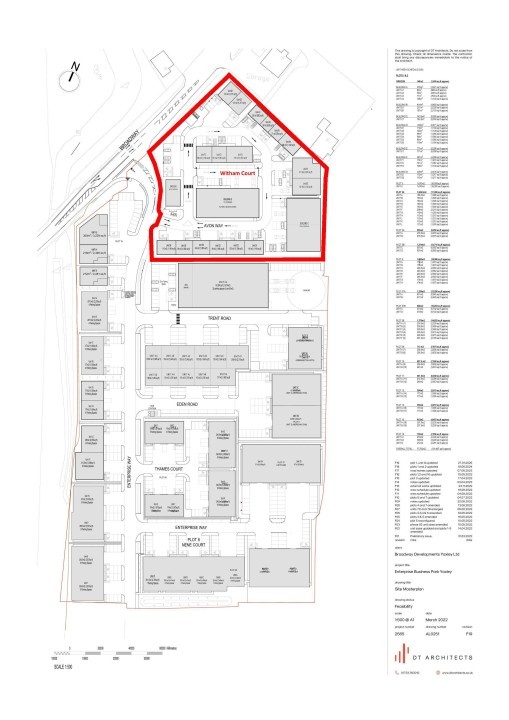
Witham Court, Enterprise Park, Yaxley, Peterborough, Cambridgeshire, PE7 3WY
£152,750 - £660,000

ID:

3020682

635 - 4,000 Sq Ft
Freehold
Industrial

Details

A new industrial / warehouse development situated on Broadway in Yaxley with a current total of 46 units. Witham Court is the final phase of the development at Enterprise Park with unit sizes ranging from 656 - 4,000 sq ft. The units will have the following :- Steel portal frame construction. Each unit has an office and toilet. LED lighting. Electric loading doors. Car parking. Fibre connection. Available November 2025

Location

Enquire about this Property

Please contact us for more details and information about this property

Your Agency Specialist

Similar to this property

Unit 21, Enterprise Way, Enterprise Park, Yaxley, Peterborough, Cambridgeshire, PE7 3WY
ff1358cd ffee 464d 810d 0ce3fb336926
Industrial
Unit 21, Enterprise Way, Enterprise Park, Yaxley, Peterborough, Cambridgeshire, PE7 3WY
2,351 Sq Ft
£400,000
View Listing
20 Enterprise Way, Enterprise Park, Yaxley, Peterborough, Cambridgeshire, PE7 3WY
d7cfd8d0 c62a 4418 8f13 3ce8eb9ef621
Industrial
20 Enterprise Way, Enterprise Park, Yaxley, Peterborough, Cambridgeshire, PE7 3WY
2,292 Sq Ft
£23,000.00 per annum exclusive
View Listing
Witham Court, Enterprise Park, Yaxley, Peterborough, Cambridgeshire, PE7 3WY
2a0a9928 4aea 4b8d b77f 57f4dd379929_web
Industrial
Witham Court, Enterprise Park, Yaxley, Peterborough, Cambridgeshire, PE7 3WY
635 - 1,217 Sq Ft
£9,525.00 - £15,750.00 per annum exclusive
View Listing

This site uses cookies to monitor site performance and provide a more responsive and personalised experience. You must agree to our use of certain cookies. For more information on how we use and manage cookies, please read our Privacy Policy.