Available

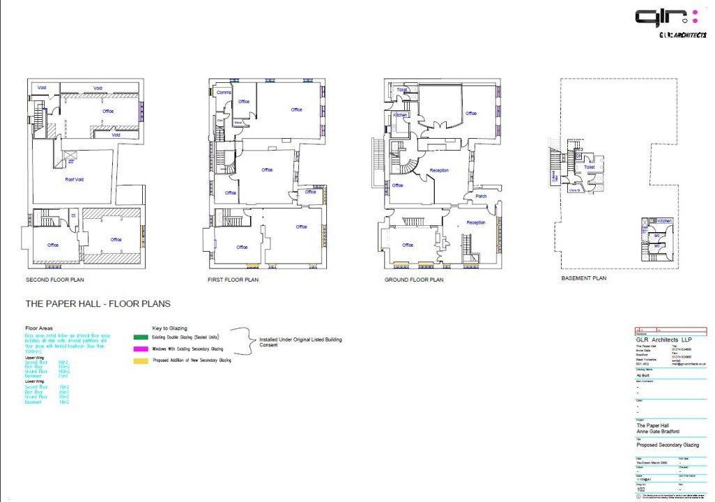
The Paper Hall, Anne Gate, Bradford, BD1 4EQ
On Application

ID:

3012483

4,916 Sq Ft
Freehold
Office

Details

The Paper Hall comprises an historic three storey Grade II Listed stone building constructed in 1643 and has been tastefully refurbished to provide modern day office accommodation. The Lower Wing provides high quality office space as well as attractive reception and boardroom. The Upper Wing and House Body provides attractive private and general offices and benefits from a ground floor feature reception area and meeting room. Kitchen and toilet/shower room facilities are available. The Paper Hall is served by its own car park with additional on street parking available in the surrounding streets.

Location

Enquire about this Property

Please contact us for more details and information about this property

Your Agency Specialist

Similar to this property

Belmont Business Centre, 7 Burnett Street, Little Germany, Bradford, West Yorkshire, BD1 5BJ d45ea41e 3ea4 409d b3f2 04bab34eda22

Office

Belmont Business Centre, 7 Burnett Street, Little Germany, Bradford, West Yorkshire, BD1 5BJ
1,224 Sq Ft
£10,040.00 per annum
View Listing
West Riding House, 41 Cheapside, Bradford, West Yorkshire, BD1 4HR b76e0f88 79a5 4d2e b971 7b805954cc54

Office

West Riding House, 41 Cheapside, Bradford, West Yorkshire, BD1 4HR
130 - 4,379 Sq Ft
On Application
View Listing
Hammerton Street, Bradford, BD3 9RD 07075e90 5336 48bc 89d1 fef7bf699bb7_web

Industrial

Hammerton Street, Bradford, BD3 9RD
27,000 Sq Ft
On Application
View Listing

This site uses cookies to monitor site performance and provide a more responsive and personalised experience. You must agree to our use of certain cookies. For more information on how we use and manage cookies, please read our Privacy Policy.