Available

Souldrop Business Park, Rushden Road, Souldrop, Bedford, Bedfordshire, MK44
£336,250 Exclusive
(Buy)
£22,865.00 per annum exclusive
(Rent)

ID:

26624

1,345 - 24,217 Sq Ft
To Let
Industrial

Details

Description
  • Expansion - If required, a first-floor mezzanine could be inserted for additional floor space (subject to obtaining the necessary planning consents).
  • Secure site with electric timed security gate.
  • 10 year construction warranty.
  • 1 reserved parking space per 250 sq.ft.
  • OFCOM advise that Standard and Ultra Fast Broadband are available with mobile data and voice coverage.
Location
  • Ideally situated off the A6 trunk road, 4 miles from Rushden, 9 miles from Bedford & Wellingborough.
  • 16 miles from Kettering, St.Neots and Tempsford and 18 miles from Northampton.
  • Souldrop Business Park is located 16 miles from Tempsford, the proposed site for the government's new town for the UK's "Silicon Valley" hub for globally renowned science & technology firms in life science manufacturing and AI. The proposal also envisages 3500 new houses and a new rail station to provide 1st class rail links to London and the East-West Cambridge-Oxford rail link.
More Information

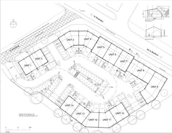
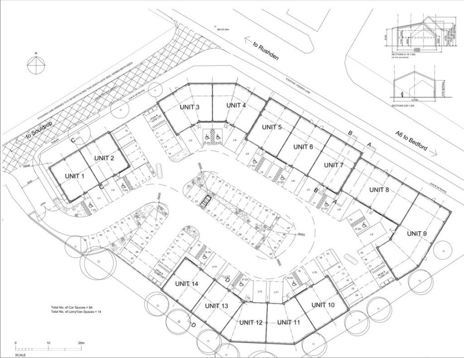
Accommodation

DescriptionSq FtSq M
Unit 11,345.00124.95
Unit 21,345.00124.95
Unit 31,830.00170.01
Unit 41,830.00170.01
Unit 51,615.00150.03
Unit 61,615.00150.03
Unit 71,615.00150.03
Unit 82,637.00244.98
Unit 92,906.00269.97
Unit 101,560.00144.92
Unit 111,560.00144.92
Unit 121,453.00134.98
Unit 131,453.00134.98
Unit 141,453.00134.98
Total24,217.002,249.74

Terms
The premises are to be sold freehold. There is an option to lease the premises at rents from £22,865 per annum exclusive.

EPC
TBC

Business Rates
TBA

Location

Enquire about this Property

Please contact us for more details and information about this property

Your Agency Specialist

Similar to this property

Apollo Business Park, Stocking Lane, Souldrop, Bedford, Bedfordshire, MK44 1HJ
5967a894 159c 41e4 888b 7e14e11726db
Industrial
Apollo Business Park, Stocking Lane, Souldrop, Bedford, Bedfordshire, MK44 1HJ
1,300 - 3,000 Sq Ft
On Application
(Buy)
On Application
(Rent)
View Listing
Second Floor Unit 1, Stoke Mill, Mill Road, Sharnbrook, Bedford, Bedfordshire, MK44
6853ab9d 0df2 4f51 ad67 074f51d90642_web
Office
Second Floor Unit 1, Stoke Mill, Mill Road, Sharnbrook, Bedford, Bedfordshire, MK44
641 Sq Ft
£11,250.00 per annum exclusive
View Listing
Suite 4 Part 1st Floor Building 109, Bedford Technology Park, Thurleigh Road, Thurleigh, Bedford, MK44
ef2df224 42d3 4c74 807a 55dd19886ea5_web
Office
Suite 4 Part 1st Floor Building 109, Bedford Technology Park, Thurleigh Road, Thurleigh, Bedford, MK44
2,268 Sq Ft
£22,680.00 per annum exclusive
View Listing

This site uses cookies to monitor site performance and provide a more responsive and personalised experience. You must agree to our use of certain cookies. For more information on how we use and manage cookies, please read our Privacy Policy.