Available

Ounsworth Street, Off Wakefield Road, Bradford, BD4 8QS
On Application

ID:

3004240

2,000 - 10,000 Sq Ft
To Let
Industrial

Details

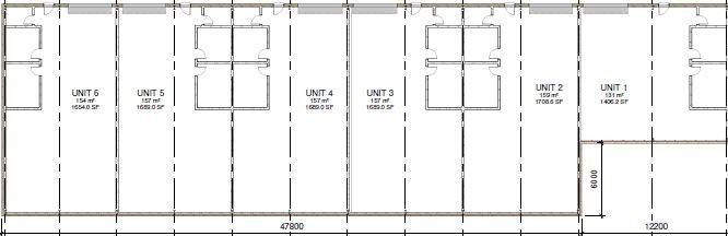
The premises will provide excellent showroom/industrial/trade counter units of high quality specification and will offer attractive bespoke accommodation capable of providing flexible layouts within a secure and gated site. The accommodation will comprise units from approximately 2,000sq.ft. up to a total of 10,000sq.ft. Externally the units will benefit from demised parking and yard facilities within a secure and landscaped site.

Location

Enquire about this Property

Please contact us for more details and information about this property

Your Agency Specialist

Similar to this property

Wakefield Road Trade Park, Wakefield Road, Bradford, West Yorkshire, BD4 7RW 020357a3 79de 4b3e b9af 9024908f8c7f_web

Land & Development

Wakefield Road Trade Park, Wakefield Road, Bradford, West Yorkshire, BD4 7RW
On Application
View Listing
Unit B, Wakefield Road Trade Park, Wakefield Road, Bradford, BD4 7RW d3912e24 ea0d 4c11 8643 905039c51b10

Industrial

Unit B, Wakefield Road Trade Park, Wakefield Road, Bradford, BD4 7RW
10,201 Sq Ft
On Application
View Listing
247 Sticker Lane, Bradford, West Yorkshire, BD4 8RS f0fe4b05 f5a5 41bf 9844 80aed3c1439f_web

Industrial

247 Sticker Lane, Bradford, West Yorkshire, BD4 8RS
61,290 Sq Ft
On Application
View Listing

This site uses cookies to monitor site performance and provide a more responsive and personalised experience. You must agree to our use of certain cookies. For more information on how we use and manage cookies, please read our Privacy Policy.