Available

Holland Lodge, Church Lane, Lydiate, Liverpool, L31 4HL
£795,000 offers in the region of

ID:

3022980

7 Acres
Freehold
Land & Development

Details

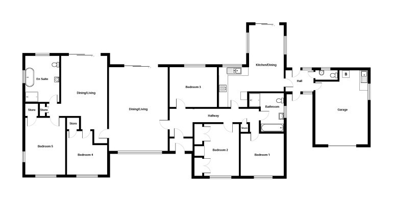
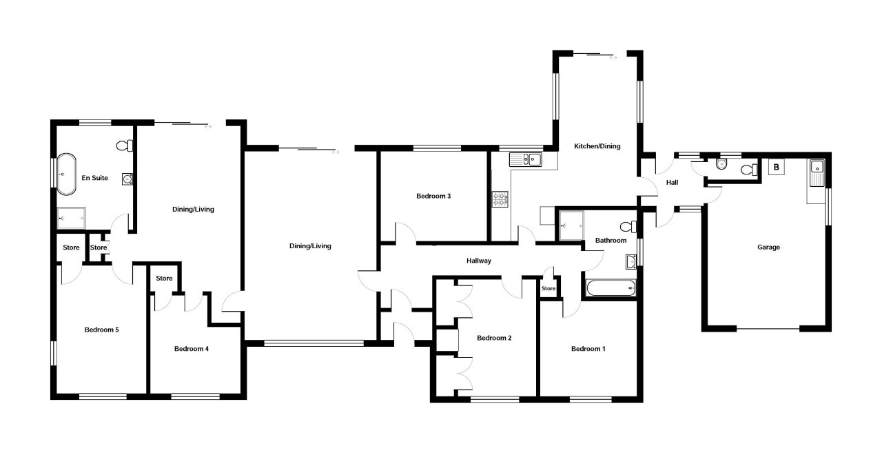
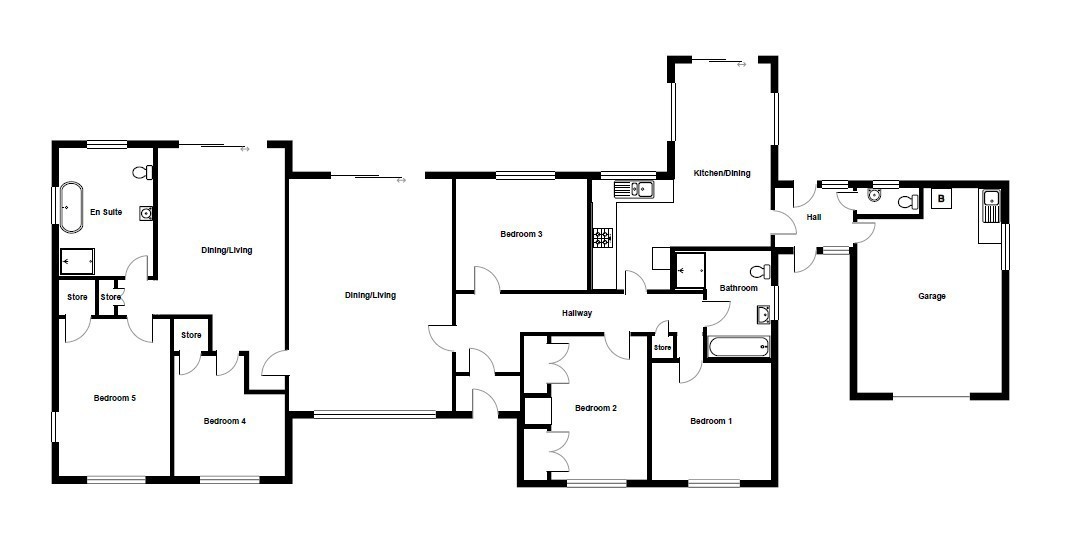
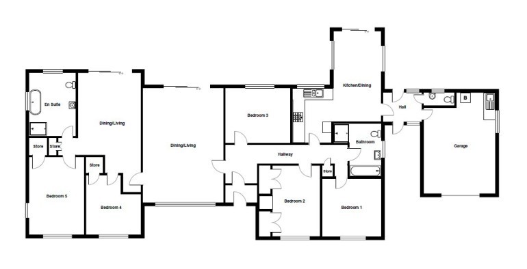
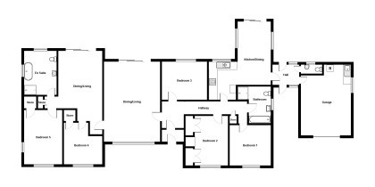
The property comprises a five-bedroom detached bungalow, two timber stable blocks and tack room, and land, in all extending to 2.8 hectares (7 acres) or thereabouts as shown edged red on the plan in these particulars for identification purposes only. The bungalow is a lovely sized family property of brick under slate construction and benefits from several grass paddocks to the rear, a beautiful formal garden curtilage and open aspect countryside views.

Location

Enquire about this Property

Please contact us for more details and information about this property

Similar to this property

Former Maghull Police Station, Westway, Maghull, Liverpool, Merseyside, L31 0AA
49a5f4cb 0ecc 4ca2 b72e 444aceb67ad5
Land & Development
Former Maghull Police Station, Westway, Maghull, Liverpool, Merseyside, L31 0AA
2 Acres
On Application
View Listing
Blundellsands Methodist Church, Mersey Road, Crosby, Liverpool, Merseyside, L23 3AE
1f7c5285 44da 4da4 8d0c 814940d121b6
Land & Development
Blundellsands Methodist Church, Mersey Road, Crosby, Liverpool, Merseyside, L23 3AE
10,789 Sq Ft
On Application
View Listing
Unit 16, Vesty Business Park, Vesty Road, Bootle, Liverpool, Merseyside, L30 1NY
6159cbe5 9e65 4e17 952e e0d090b546ad_web
Industrial
Unit 16, Vesty Business Park, Vesty Road, Bootle, Liverpool, Merseyside, L30 1NY
11,265 Sq Ft
On Application
(Buy)
On Application
(Rent)
View Listing

This site uses cookies to monitor site performance and provide a more responsive and personalised experience. You must agree to our use of certain cookies. For more information on how we use and manage cookies, please read our Privacy Policy.