Available

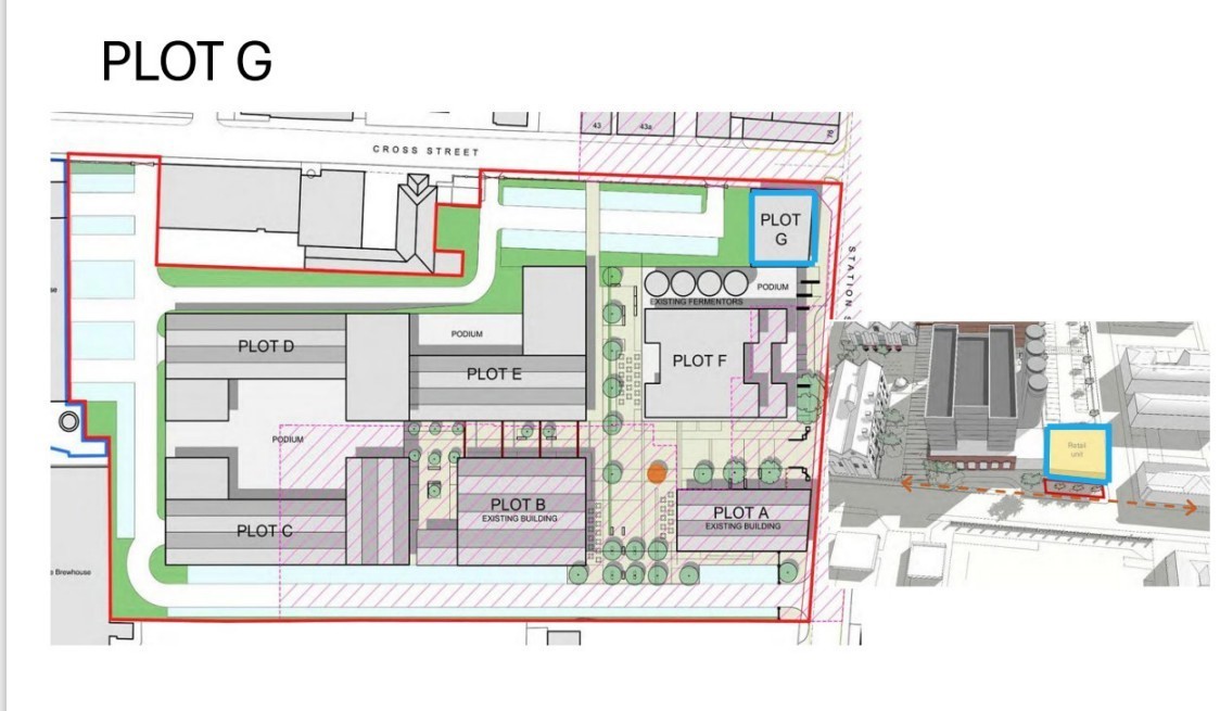
Former Molson Coors Brewery, Plot G Station Street, Burton-On-Trent, Staffordshire, DE14 1BG
£250,000

ID:

3022996

5 Acres
For Sale
Industrial

Details

The site comprises the impressive former Molson Coors Brewery site with its three prominent frontages extending to circa 5.23 acres (2.12 Hectares), upon which stand an array of two, three and four storey buildings built circa 1860s in solid red brick construction, whilst more recently, there have been additional buildings constructed during the 1970s. The buildings are laid out in a North East / South East orientation that reflects the historic configuration of the site. Two buildings are Grade II Listed and built circa 1864-65 in red brick construction whilst the modern industrial buildings occupy similar positions along a central spine as the original buildings on site. The main frontage on Station Street comprises a double gable end of the listed building and the silver fermenter silos, the latter of which stands circa 16m in height. Externally, vehicular access is available from all three frontages on Station Street, Duke Street and Cross Street

Location

Enquire about this Property

Please contact us for more details and information about this property

Your Agency Specialist

Similar to this property

Former Molson Coors Brewery, Station Street, Burton-On-Trent, Staffordshire, DE14 1BG 6b61ddcb 9c5e 4b42 91e1 6d63d0f36851

Industrial

Former Molson Coors Brewery, Station Street, Burton-On-Trent, Staffordshire, DE14 1BG
5 Acres
On Application
View Listing
Former Molson Coors Brewery, Plot A & B Station Street, Burton-On-Trent, Staffordshire, DE14 1BG 05650f7a dc85 418d badf 2cddea9c1746

Industrial

Former Molson Coors Brewery, Plot A & B Station Street, Burton-On-Trent, Staffordshire, DE14 1BG
5 Acres
£750,000
View Listing
Former Molson Coors Brewery, Plot C Station Street, Burton-On-Trent, Staffordshire, DE14 1BG 6c0f03d9 ca2b 4adb 9c35 ff7c4845795c

Industrial

Former Molson Coors Brewery, Plot C Station Street, Burton-On-Trent, Staffordshire, DE14 1BG
5 Acres
£1,400,000
View Listing

This site uses cookies to monitor site performance and provide a more responsive and personalised experience. You must agree to our use of certain cookies. For more information on how we use and manage cookies, please read our Privacy Policy.