Available

Drive Thru Unit, Airfield Business Park, Harrison Road Off Leicester Road, Market Harborough, Leicestershire, LE16 7WB
On Application

ID:

3014815

2,300 Sq Ft
Leasehold
Bar / Restaurant / Takeaway

Details

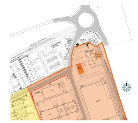
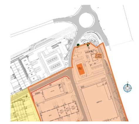
New build drive thru unit adjacent to Costa Coffee on established business park. Exact design and specification of the unit to be agreed with the operator. The layout of the wider scheme has been designed and forms part of a planning application reference no 2024/Reg3Ma/0015/LCC

Location

Enquire about this Property

Please contact us for more details and information about this property

Your Agency Specialist

Similar to this property

Unit H2, Airfield Business Park, Harrison Road, Market Harborough, Leicestershire, LE16 7WB c6eb5ab8 563b 452d 97e5 8fe7d4d10dc7

Industrial

Unit H2, Airfield Business Park, Harrison Road, Market Harborough, Leicestershire, LE16 7WB
2,368 Sq Ft
£26,050.00 per annum exclusive
View Listing
Unit H1, Airfield Business Park, Harrison Road, Market Harborough, Leicestershire, LE16 7WB b9997392 a011 4a45 a6d8 70a1c9285dce

Industrial

Unit H1, Airfield Business Park, Harrison Road, Market Harborough, Leicestershire, LE16 7WB
5,750 - 11,500 Sq Ft
£55,000.00 per annum exclusive
View Listing
Unit H7, Airfield Business Park, Harrison Road, Market Harborough, Leicestershire, LE16 7WB 414b56f7 0601 4ef9 ae63 6fbd323b50f1

Industrial

Unit H7, Airfield Business Park, Harrison Road, Market Harborough, Leicestershire, LE16 7WB
2,368 Sq Ft
£26,050.00 per annum exclusive
View Listing

This site uses cookies to monitor site performance and provide a more responsive and personalised experience. You must agree to our use of certain cookies. For more information on how we use and manage cookies, please read our Privacy Policy.