Available

Burton Manor , The Village, Burton, Neston, Cheshire, CH64 5AB
£2,750,000 offers in the region of

ID:

3023693

24,372 Sq Ft
Freehold
Office

Details

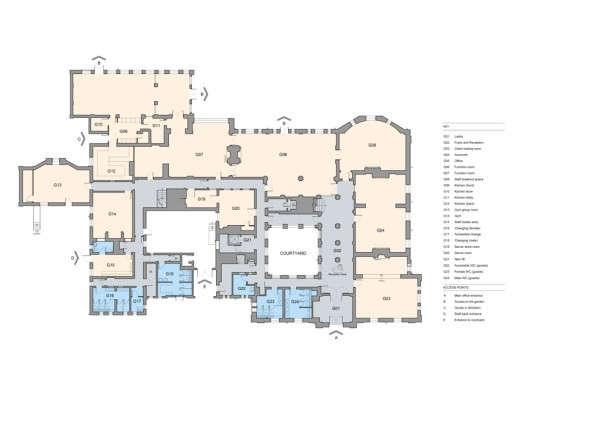
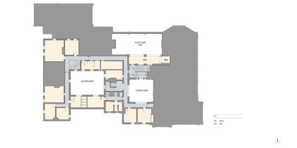
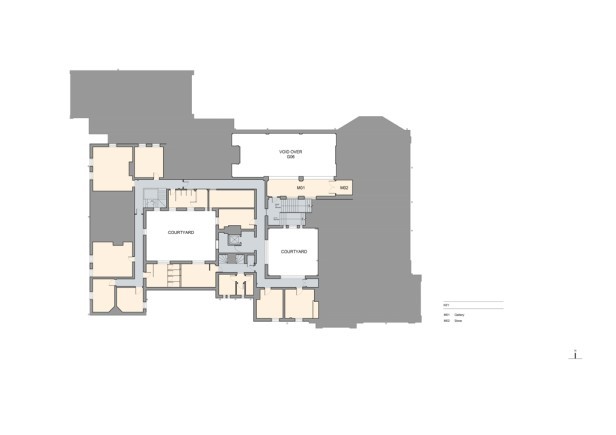
A substantial detached property, fully refurbished internally and externally in 2019. Current use offices - potential to convert to residential, hospital, retirement village, nursing home. The Grade II Listed Burton Manor house is a substantial detached property finished in sandstone which is separated from Burton Village by a high wall/kitchen garden. The property is of traditional construction faced in sandstone with a multi-pitched roof clad in slate with sash windows throughout. The property benefits from significant gardens to the rear with land to the front offering car parking for approximately 58 cars. We anticipate that the building and site could be suitable for the following purposes (subject to satisfactory planning permission): Conversion back to grand single dwelling Conversion to residential apartments or townhouses Continued single office use Conversion to serviced offices Religious retreat Private hospital Retirement village Training centre Nursing home The property comprises ground, mezzanine and first floors and the entire property was substantially refurbished in 2019 to provide office accommodation to the following internal specification: Original plaster work and covings Original doors now refurbished Carpeted floors Fluorescent strip lighting and heated via wall mounted radiators from oil fired boilers Substantial refurbished common areas to include kitchens, toilets and gymnasium Burton Manor is located in the village of Burton which is located in South Wirral. The main road through the village being Neston Road/The Village leads north east to Chester High Road (A540) which in turn leads north to Heswall and south to the Two Mills roundabout and ultimately to the M56 motorway. The property lies approximately 6.5 miles from Junction 5 of the M53 motorway. Burton is a "picture postcard" village and regarded as an affluent location comprising a mixture of large detached houses, St Nicholas Church and Gladstone Village Hall.

Location

Enquire about this Property

Please contact us for more details and information about this property

Similar to this property

Property at St David's United Reformed Church, 8 Crosthwaite Avenue, Eastham, Wirral, Merseyside, CH62 9DG
a5253e31 a6bb 4895 a820 234097799953
Land & Development
Property at St David's United Reformed Church, 8 Crosthwaite Avenue, Eastham, Wirral, Merseyside, CH62 9DG
4,618 Sq Ft
On Application
View Listing
Bridgewater House, North Road, Ellesmere Port, Cheshire, CH65
a01ecf92 5d87 482c afd4 46a73c570256_web
Office
Bridgewater House, North Road, Ellesmere Port, Cheshire, CH65
200 - 1,500 Sq Ft
On Application
View Listing
Royal Standard House, 330-334 New Chester Road, Birkenhead, Merseyside, CH42 1LE
4a95b2df 2ac7 4680 b018 bd4fd67fa6c7_web
Office
Royal Standard House, 330-334 New Chester Road, Birkenhead, Merseyside, CH42 1LE
15,948 Sq Ft
On Application
View Listing

This site uses cookies to monitor site performance and provide a more responsive and personalised experience. You must agree to our use of certain cookies. For more information on how we use and manage cookies, please read our Privacy Policy.