Available

Britannia Estate, Leagrave Road, Luton, LU3
On application

ID:

24029

219 - 16,277 Sq Ft
Leasehold
Industrial

Details

Description
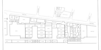
  • The estate provides a multi-let industrial estate across a total of 10.04 acres and was formerly the Skefco Ball Bearing Factory developed between the 1920's and 1940's
  • The estate comprises of 58 units providing industrial/warehousing and office accommodation ranging from 549 sq. ft to 17,000 sq. ft
  • On site facilities include secure gate access, CCTV recording, communal WC facilities and car parking
Location
  • Situated on Leagrave Road in the Bury Park/Town Centre area of Luton
  • Junction 11 of the M1 within 2 miles
  • Luton mainline train station within 5 miles
  • London Luton Airport within 7 miles
More Information

Terms
Available by way of a new FRI lease for a term to be agreed. VAT is payable

EPC
TBC

Business Rates
Available upon request

Estate Charge
Available upon request

Location

Enquire about this Property

Please contact us for more details and information about this property

Your Agency Specialist

Similar to this property

Unit 11a Britannia Estate, Leagrave Road, Luton, LU3
5f5b1b5c f317 4b06 90b8 598f87eda309_web
Industrial
Unit 11a Britannia Estate, Leagrave Road, Luton, LU3
16,227 Sq Ft
£122,000.00 per annum exclusive
View Listing
Unit 7 (First Floor) Britannia Estate, Leagrave Road, Luton, LU3
00ab5146 ed05 403c 875c f0bfea45e721_web
Industrial
Unit 7 (First Floor) Britannia Estate, Leagrave Road, Luton, LU3
2,424 Sq Ft
£24,250.00 per annum exclusive
View Listing
Unit 10F Britannia Estate, Leagrave Road, Luton, LU3
5c116e62 98bf 4185 9719 d21a3152fabe_web
Industrial
Unit 10F Britannia Estate, Leagrave Road, Luton, LU3
3,420 Sq Ft
£34,200.00 per annum exclusive
View Listing

This site uses cookies to monitor site performance and provide a more responsive and personalised experience. You must agree to our use of certain cookies. For more information on how we use and manage cookies, please read our Privacy Policy.