Available

7-11 Midland Road, Bedford, Bedfordshire, MK40
£180,000.00 per annum

ID:

2276

16,661 Sq Ft
To Let
Retail

Details

Description
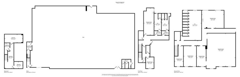
  • Substantial town centre property available to lease as a whole or in part. Suitable for retail, office or any other use within Class E and also has potential for leisure uses (subject to planning consent).
  • Currently configured as retail space to the ground floor with storage / office space across the first and second floors. There is a goods lift and loading bay to the rear with multiple access points.
  • The property could be split and letting options include the whole building plus basement. The ground floor only, or upper floors as a whole or individually.
Location
  • The property is situated within Bedford town centre close to local shops and amenities.
  • Situated directly opposite of the entrance to Bedford bus station and within a 10 minute walk of the main line train station.
  • Nearby multiples include JD Sports, Boots. HSBC, Tesco and B&M.
More Information

Accommodation

DescriptionSq FtSq M
Ground Floor7,050.00654.94
First Floor3,983.00370.02
Second Floor5,123.00475.93
Basement505.0046.91
Total16,661.001,547.80

Terms
The rent for the whole building is £180,000 per annum exclusive of VAT. Rent on application for possible splits depending on areas taken. The property will be available to lease on new full repairing and insuring terms. Incentives may be considered depending on covenant strength and lease length.

EPC
C-51

Business Rates
The rateable value is £98,500. For the rates payable please contact us or www.voa.gov.uk

Location

Enquire about this Property

Please contact us for more details and information about this property

Your Agency Specialist

Similar to this property

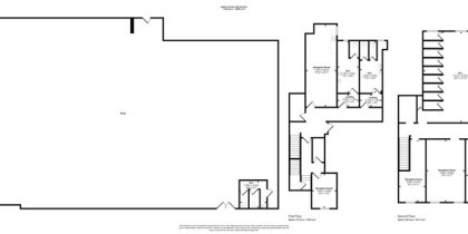
First Floor Office, Midland Road, Bedford, Bedfordshire, MK40
cf03fb98 f401 4f82 8b83 2c16ed63facd_web
Office
First Floor Office, Midland Road, Bedford, Bedfordshire, MK40
1,697 Sq Ft
£20,000.00 per annum exclusive
View Listing
Unit 18 Church Arcade, Bedford, MK40
3c3765c9 641d 4829 a465 3f1556a2d449_web
Retail
Unit 18 Church Arcade, Bedford, MK40
538 Sq Ft
£10,000.00 per annum exclusive
View Listing
16-18 Harpur Street, Bedford, Bedfordshire, MK40
d16c5ef3 29a2 40d2 b7a9 a3fd51095490_web
Retail
16-18 Harpur Street, Bedford, Bedfordshire, MK40
3,025 Sq Ft
£38,000.00 per annum exclusive
View Listing

This site uses cookies to monitor site performance and provide a more responsive and personalised experience. You must agree to our use of certain cookies. For more information on how we use and manage cookies, please read our Privacy Policy.