Available

2nd Floor Office , 66-68 St. Loyes Street, Bedford, Bedfordshire, MK40
£8,500.00 per annum exclusive

ID:

20179

387 Sq Ft
To Let
Office

Details

Description
  • An opportunity to lease a self-contained suite of two large offices with open plan reception, own kitchen and bathroom
  • The offices are fully double glazed and have the advantage of hot/cold air conditioning installed
  • Parking for three cars in tandem whilst being conveniently located in Bedford Town Centre
Location
  • Located on St Loyes Street close to the pedestrian zone in Bedford Town Centre
  • Immediate access to A4280 and quick access to the A6 & A428 Western Bypass, M1 (J13 & J14) and A1
  • Bedford Railway Station - 0.7 miles
More Information

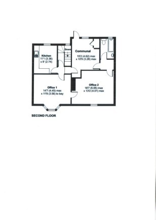
Accommodation

DescriptionSq FtSq M
Second Floor Office387.0035.95

Terms
Available by way of a new FRI lease for a term to be agreed at a rent of £8,500 exclusive. VAT is not payable.

EPC
E-106

Business Rates
The Rateable Value is £5,600 per annum. For the rates payable, please contact www.voa.gov.uk. Please note Business Rates Relief may be available, subject to terms and conditions.

Location

Enquire about this Property

Please contact us for more details and information about this property

Your Agency Specialist

Similar to this property

Bedford Bus Station First Floor Office Allhallows, Bedford, Bedfordshire, MK40
3cccc21c 0c99 4f40 88ff fd2181dbf535_web
Office
Bedford Bus Station First Floor Office Allhallows, Bedford, Bedfordshire, MK40
66 - 1,485 Sq Ft
£936.00 - £7,164.00 per annum exclusive
View Listing
12 Church Arcade, Bedford, Bedfordshire, MK40
abf355b9 aa60 4a75 a770 457abeef9c68_web
Retail
12 Church Arcade, Bedford, Bedfordshire, MK40
1,011 Sq Ft
£10,000.00 per annum exclusive
View Listing
Unit 16 Church Arcade, Bedford, MK40
74cabb08 dc7e 4ad0 a7b8 79dc238e4425_web
Retail
Unit 16 Church Arcade, Bedford, MK40
298 Sq Ft
£6,000.00 per annum exclusive
View Listing

This site uses cookies to monitor site performance and provide a more responsive and personalised experience. You must agree to our use of certain cookies. For more information on how we use and manage cookies, please read our Privacy Policy.