Available

20 Bull Lane, Edmonton, Greater London, N18 1RA
£2,100,000 For the freehold

ID:

26798

9,687 Sq Ft
Freehold
Industrial

Details

Description
  • A circa 1920's built single storey industrial workshop/warehouse with offices to the front.
  • Ancillary second brick built building/storage area on site, accessed by a shared driveway.
  • External yard/loading area and parking.
  • Min Clear height to warehouse 3.3m to steels
  • 3 Phase power, 100amps per phase / Gas supply
Location
  • Situated in the Industrial area of Edmonton/Tottenham borders, directly behind the North Middlesex Hospital. The North Circular Road (A406) is circa 500m to the north, giving access to the Great Cambridge Road (A10) with the M25 (J25) and the M11 (J4) is circa 6 miles to the east.
  • Tottenham Hale Railway Station is 2.6 miles to the south, providing services to the Victoria Line and Overground (Greater Anglia).
  • The local area is currently being redeveloped across various sites to provide live/work space.
  • White Hart Lane Railway station is 650 metres away providing services to Seven Sisters Road; Victoria Line.
More Information

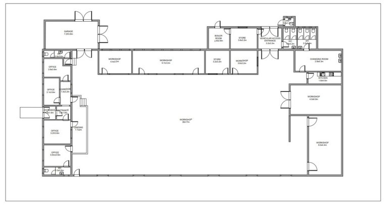
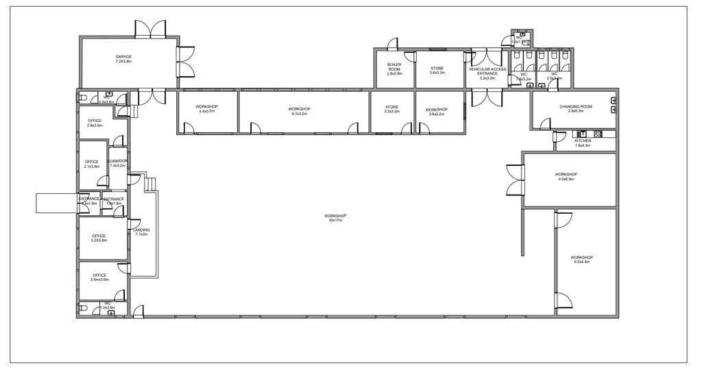
Accommodation

DescriptionSq FtSq M
Main Building 8,342.00774.97
Annex / workshop1,345.00124.95
Total9,687.00899.92

Terms
Freehold: Offers over £2.7 million. VAT TBC

EPC
E-107

Business Rates
The rateable value from the 1st April 2026 is £62,000. For the rates payable please contact us or www.voa.gov.uk

Location

Enquire about this Property

Please contact us for more details and information about this property

Similar to this property

Unit 4, 22 Bull Lane, London, Greater London, N18
dfa0559b e266 4730 87b6 3e2085281d91_web
Industrial
Unit 4, 22 Bull Lane, London, Greater London, N18
3,784 Sq Ft
£65,000.00 per annum
View Listing
Unit 5, Peacock Industrial Estate, White Hart Lane, London, Greater London, N17
bf9dfaa2 55e9 4cd2 8ec9 214a89fcdca8_web
Industrial
Unit 5, Peacock Industrial Estate, White Hart Lane, London, Greater London, N17
1,856 Sq Ft
£33,950.00 per annum exclusive
View Listing
1a Towpath Road & 3 Anthony Way, Stonehill Business Park, London, Greater London, N18
46acd900 f5aa 49f1 86f4 b8f12e6577b3_web
Industrial
1a Towpath Road & 3 Anthony Way, Stonehill Business Park, London, Greater London, N18
44,050 Sq Ft
£7,500,000 For the freehold
View Listing

This site uses cookies to monitor site performance and provide a more responsive and personalised experience. You must agree to our use of certain cookies. For more information on how we use and manage cookies, please read our Privacy Policy.