Available

13 Market Place, Stowmarket, Suffolk, IP14 1AH
£12,000.00 - £30,000.00 per annum

ID:

3023327

400 - 2,164 Sq Ft
Leasehold
Retail

Details

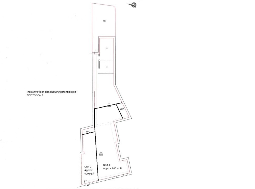
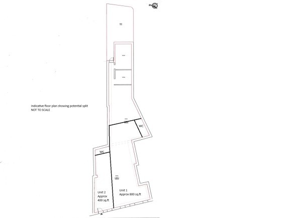
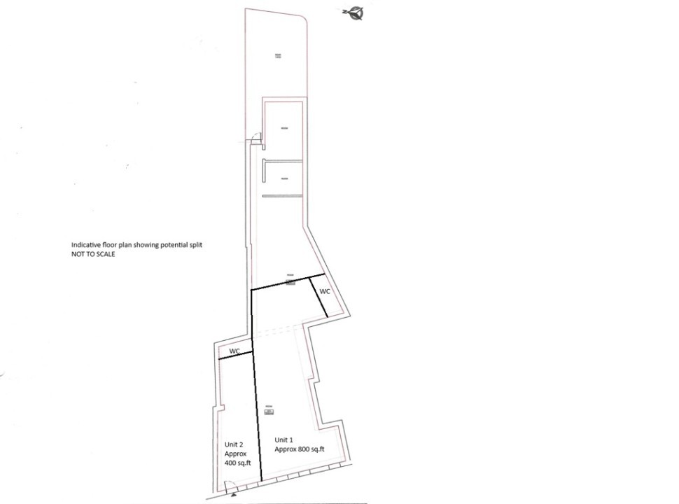
The property is a former banking hall providing open plan retail space and basement storage and occupies a prominent position in Stowmarket town centre. The property has been stripped back to a shell finish allowing flexibility for occupier fit out. The property could potentially be split to provide two separate units as per the attached plan. Consent has also been granted to provide new display windows, further details are available on request.

Location

Enquire about this Property

Please contact us for more details and information about this property

Your Agency Specialist

Similar to this property

Stevens House 17 Station Road West, Stowmarket, Suffolk, IP14 34ecd0f0 d92f 433c ae25 b3278deca2b5_web

Office

Stevens House 17 Station Road West, Stowmarket, Suffolk, IP14
526 - 2,106 Sq Ft
£5,260.00 - £21,060.00 per annum
View Listing
Stevens House 17 Station Road West, Stowmarket, Suffolk, IP14 afb6063f b0ae 46eb 944a 5512a4870333_web

Office

Stevens House 17 Station Road West, Stowmarket, Suffolk, IP14
6,022 Sq Ft
£450,000 offers invited
View Listing
Paper Mill Lane, Bramford, Ipswich, Suffolk, IP8 4BZ 58726ea3 08bc 4c0f 87df 03b7b863d9ee_web

Land & Development

Paper Mill Lane, Bramford, Ipswich, Suffolk, IP8 4BZ
12 - 62 Acres
£2,000,000 offers in the region of
View Listing

This site uses cookies to monitor site performance and provide a more responsive and personalised experience. You must agree to our use of certain cookies. For more information on how we use and manage cookies, please read our Privacy Policy.